Type plan: wijzigingsplan
Naam van het plan: Hoogmadeseweg 70
Status: ontwerp
Plan identificatie: NL.IMRO.0547.WPhoogmadeseweg70-ON01

Toelichting

1 Inleiding
1.1 Aanleiding
Initiatiefnemer is voornemens om aan de Hoogmadeseweg 70 te Leiderdorp een hospice met ondersteunende functies te realiseren. In het geldende bestemmingsplan 'W4', vastgesteld op 14 juli 2014 door de raad van de gemeente Leiderdorp, is voor de bestemming 'Maatschappelijk' in artikel 8.5 een wijzigingsbevoegdheid opgenomen. Burgemeester en wethouders kunnen het plan wijzigen ten behoeve van het (niet meer) toestaan van maatschappelijke voorzieningen die als geluidsgevoelige functie of kwetsbaar object zijn aangemerkt, mits ter plaatse een aanvaardbaar woon- en leefklimaat kan worden gerealiseerd en de omgevingsdienst om advies is gevraagd.
 
Om het initiatief juridisch-planologisch mogelijk te maken dient een wijzigingsplan vastgesteld te worden, waarbij aangetoond wordt dat er voldaan wordt aan de wijzigingsbevoegdheid. Het voorliggende wijzigingsplan voorziet hierin.
 
1.2 Ligging plangebied
Het plangebied van voorliggend wijzigingsplan is gelegen aan de Hoogmadeseweg 70 te Leiderdorp. Het plangebied betreft de kadastrale gemeente Leiderdorp, sectie B, perceelnummer 2573 en 4222. De navolgende afbeeldingen tonen de globale ligging en begrenzing van het plangebied.
 
Globale ligging plangebied, rood omcirkeld (bron: Google Maps) 
Globale begrenzing plangebied, rood omkaderd (bron: Google Maps) 
1.3 Geldend bestemmingsplan
Het plangebied ligt binnen de plangrenzen van het geldende bestemmingsplan 'W4', vastgesteld op 14 juli 2014 door de raad van de gemeente Leiderdorp. De navolgende afbeelding toont een uitsnede van de verbeelding van het geldende bestemmingsplan.
 
Uitsnede geldende bestemmingsplan 'W4', plangebied rood omkaderd (bron: ruimtelijkeplannen.nl)
 
De gronden van het plangebied zijn aangewezen met de bestemming 'Maatschappelijk'. Deze gronden zijn bestemd voor maatschappelijke voorzieningen en onder andere water, groenvoorzieningen, straatmeubilair, speeltoestellen en nutsvoorzieningen. Geluidgevoelige functies en kwetsbare objecten zijn niet toegestaan. Binnen het plangebied is een bouwvlak opgenomen waar gebouwen mogen worden gebouwd. Het bouwvlak mag voor 70% bebouwd worden met een bouwhoogte van maximaal 9 m.
 
Daarnaast geldt voor het plangebied de dubbelbestemming 'Waarde - Archeologie - middelhoge trefkans'. Deze gronden zijn mede bestemd voor de bescherming en veiligstelling van archeologische waarden.
 
Voor de bestemming 'Maatschappelijk' is in artikel 8.5 een wijzigingsbevoegdheid opgenomen. Burgemeester en wethouders kunnen het plan wijzigen voor het toevoegen of verwijderen van aanduidingen ten behoeve van het toestaan of verwijderen van maatschappelijke voorzieningen die als geluidgevoelige functie of kwetsbaar object zijn aangemerkt, mits ter plaatse een aanvaardbaar woon- en leefklimaat kan worden gerealiseerd en de omgevingsdienst om advies is gevraagd.
 
1.4 Leeswijzer
Na dit inleidende hoofdstuk zal in hoofdstuk 2 het plan worden beschreven. In hoofdstuk 3 wordt ingegaan op het relevante beleid. Hoofdstuk 4 licht de haalbaarheid van het wijzigingsplan toe aan de hand van de wijzigingsbevoegdheid conform de geldende bestemmingsplanregels. In hoofdstuk 5 worden de omgevingsaspecten behandeld. Hoofdstuk 6 omvat de juridische planbeschrijving. De economische uitvoerbaarheid wordt in hoofdstuk 7 behandeld en tot slot bevat hoofdstuk 8 de maatschappelijke uitvoerbaarheid van het plan.
2 Planbeschrijving
2.1 Huidige situatie
Op de planlocatie aan de Hoogmadeseweg 70 te Leiderdorp, ook wel bekend onder de naam locatie Doesmeer, is in de huidige situatie een gebouw aanwezig die bestemd is voor maatschappelijke voorzieningen. Het grondoppervlak van het gebouw bedraagt ca. 1.100 m². Het betreft een voormalig schoolgebouw en wordt momenteel (gedeeltelijk) verhuurd door een leegstandsbeheerder.
 
De navolgende afbeelding toont het gebouw in de huidige situatie.
 
Huidige situatie (bron: Google Maps)
 
Het plangebied bestaat voor een groot gedeelte uit verharding. Het plangebied is ontsloten aan de Hoogmadeseweg en aan de voorzijde van het gebouw zijn parkeerplaatsen aanwezig. Aan de zuid-, west- en oostzijde is het plangebied afgeschermd met bomen.
 
In de omgeving van het plangebied zijn verschillende functies aanwezig. Zo bevindt zich ten noorden het voormalige politiebureau, ten zuidoosten een gemeentewerf en brandweer en ten zuidwesten een taxibedrijf. Verder zijn er in de omgeving verschillende zorginstellingen aanwezig.
 
2.2 Toekomstige situatie
In de toekomstige situatie wordt op de planlocatie een hospice gerealiseerd. Om de beoogde ontwikkeling mogelijk te maken wordt de bestaande bebouwing gesloopt. De hospice biedt ruimte voor 6 gastenkamers op de begane grond. Verder is op de begane grond onder andere een woonkamer met woonkeuken aanwezig.
 
Op de eerste etage wordt een logeerkamer voor bezoekers gerealiseerd. Verder is hier ruimte voor werkplekken, een vergaderruimte, een flexibele spreekruimte en een bergruimte. Ook wordt hier een ruimte voor de benodigde installaties gerealiseerd.
   
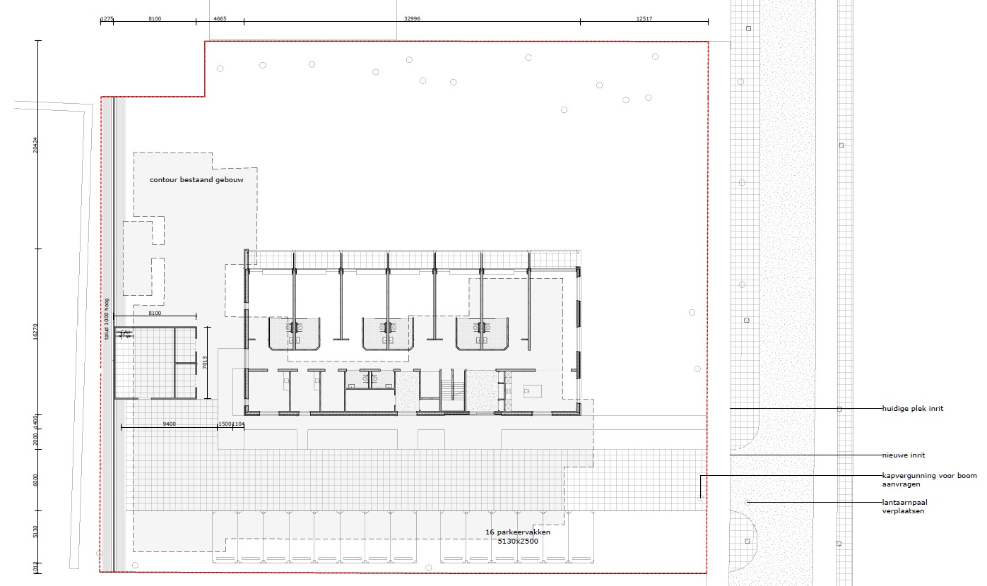
De navolgende afbeeldingen tonen een situatietekening en een tekeningen van de voor- en achtergevel van het beoogde gebouw. 
 
Situatietekening beoogde situatie (bron: Stol Architecten)
Aanzichten voor- en achtergevel hospice (bron: Stol architecten)
 
Naast de realisatie van de hospice wordt het perceel heringericht ten behoeve van parkeren en groen. In totaal worden er 16 parkeerplaatsen gerealiseerd op het eigen terrein. Aan de achterzijde van de hospice bevindt zich een fietsenberging.
 
Het plangebied wordt ontsloten aan de Hoogmadeseweg door middel van een nieuwe inrit. Om deze inrit mogelijk te maken dient een boom gekapt en een lantaarnpaal verplaatst te worden.
 
3 Beleidskader
 
3.1 Rijksbeleid
3.1.1 Nationale Omgevingsvisie (NOVI)
Op 11 september 2020 is de Nationale Omgevingsvisie (NOVI) in werking getreden. Deze visie bevat de hoofdzaken van het strategisch rijksbeleid voor de fysieke leefomgeving. Dit is een combinatie van beleid uit de bestaande beleidsdocumenten, met en zonder wettelijke grondslag, en nieuw strategisch beleid. De grote en complexe opgaven, zoals klimaatverandering, energietransitie, circulaire economie, bereikbaarheid en woningbouw zullen Nederland gaan veranderen. De NOVI bevat een toekomstperspectief met de ambities van het Rijk. In de NOVI zijn 21 nationale belangen met bijbehorende opgaven geformuleerd. Deze nationale belangen komen samen in vier prioriteiten:
  1. ruimte voor klimaatadaptatie en energietransitie;
  2. duurzaam economisch groeipotentieel;
  3. sterke en gezonde steden en regio's;
  4. toekomstbestendige ontwikkeling van het landelijk gebied. 
Voor de vier NOVI-prioriteiten geldt steeds dat zowel voor de lange als de korte termijn maatregelen nodig zijn. Deze maatregelen dienen in de praktijk voortdurend op elkaar in te spelen. Bij de afweging van de belangen staat een evenwichtig gebruik van de fysieke leefomgeving centraal voor zowel de boven- als de ondergrond.
    
Planspecifiek
Gezien de aard en omvang is de NOVI verder niet specifiek van belang.
 
3.1.2 Besluit algemene regels ruimtelijke ordening (Barro)
De wetgever heeft in de Wro, ter waarborging van de nationale of provinciale belangen, de besluitmogelijkheden van lagere overheden begrensd. Indien nationale of provinciale belangen dat met het oog op een goede ruimtelijke ordening noodzakelijk maken, kunnen bij of krachtens algemene maatregel van bestuur respectievelijk bij of krachtens provinciale verordening regels worden gesteld omtrent de inhoud van bestemmingsplannen. In het Besluit algemene regels ruimtelijke ordening (Barro) zijn 14 nationale belangen opgenomen die in de Structuurvisie Infrastructuur en Ruimte (SVIR) zijn herbevestigd. Voor deze belangen is het Rijk verantwoordelijk en wil het resultaten boeken. Buiten deze belangen hebben decentrale overheden beleidsvrijheid. Het Barro is op 30 december 2011 in werking getreden en op 1 oktober 2012, 1 juli 2014 en 1 juli 2016 op onderdelen aangevuld.
 
Planspecifiek
De voorgenomen ontwikkeling heeft geen raakvlakken met het Barro. Daarnaast is de ontwikkeling dusdanig klein van schaal dat het niet direct van nationaal belang is. Vanuit het Barro zijn er dan ook geen specifieke randvoorwaarden voor dit plan.
 
3.1.3 Ladder voor duurzame verstedelijking
In het Besluit ruimtelijke ordening (Bro) is de verplichting opgenomen om in het geval van een nieuwe stedelijke ontwikkeling in de toelichting een onderbouwing op te nemen van nut en noodzaak van de nieuwe stedelijke ruimtevraag en de ruimtelijke inpassing. Hierbij wordt uitgegaan van de 'ladder voor duurzame verstedelijking'.
 
De 'stappen van de ladder' worden in artikel 3.1.6, leden 2 - 4 Bro als volgt omschreven:
  1. De toelichting bij een bestemmingsplan dat een nieuwe stedelijke ontwikkeling mogelijk maakt, bevat een beschrijving van de behoefte aan die ontwikkeling, en, indien het bestemmingsplan die ontwikkeling mogelijk maakt buiten het bestaand stedelijk gebied, een motivering waarom niet binnen het bestaand stedelijk gebied in die behoefte kan worden voorzien.
  2. Indien in een bestemmingsplan als bedoeld in het tweede lid toepassing is gegeven aan artikel 3.6, eerste lid, onder a of b, van de wet kan bij dat bestemmingsplan worden bepaald dat de beschrijving van de behoefte aan een nieuwe stedelijke ontwikkeling en een motivering als bedoeld in het tweede lid eerst wordt opgenomen in de toelichting bij het wijzigings- of het uitwerkingsplan als bedoeld in dat artikel.
  3. Een onderzoek naar de behoefte als bedoeld in het tweede lid, heeft, in het geval dat een bestemmingsplan als bedoeld in het tweede lid, ziet op de vestiging van een dienst als bedoeld in artikel 1 van de Dienstenwet en dit onderzoek betrekking heeft op de economische behoefte, de marktvraag of de beoordeling van de mogelijke of actuele economische gevolgen van die vestiging, slechts tot doel na te gaan of de vestiging van een dienst in overeenstemming is met een goede ruimtelijke ordening.
Planspecifiek
Conform artikel 1.1.1, eerste lid onder i van het Bro wordt onder een stedelijke ontwikkeling verstaan: een 'ruimtelijke ontwikkeling van een bedrijventerrein of zeehaventerrein, of van kantoren, detailhandel, woningbouwlocaties of andere stedelijke voorzieningen.' Het voorliggende bestemmingsplan voorziet in de realisatie van een hospice, waarbij een bestaand gebouw vervangen wordt. Ten opzichte van het huidige gebouw neemt het ruimtebeslag en het brutovloeroppervlak af. Daarnaast blijkt uit jurisprudentie van de Afdeling bestuursrechtspraak van de Raad van State dat de ondergrens van wat als nieuwe stedelijke ontwikkeling moet worden gezien, ligt tussen de 9 en 14 nieuwe woningen afhankelijk van de omgeving waarin de ontwikkeling plaatsvindt. Hoewel de hospice niet als 'wonen' aangemerkt dient te worden, voorziet de hospice voorziet in slechts 6 gastenverblijven en verschillende gezamenlijke ruimtes.
 
Gelet op het voorgaande kan gesteld worden dat er geen sprake is van een nieuwe stedelijke ontwikkeling. Het plan is dan ook in overeenstemming met de ladder voor duurzame verstedelijking.
  
3.2 Provinciaal beleid
 
3.2.1 Omgevingsvisie Zuid-Holland
De meeste recente versie van de Omgevingsvisie van de provincie Zuid-Holland is in werking getreden op 1 augustus 2020. De Omgevingsvisie bestaat uit vier onderdelen:
  1. Ruimtelijke hoofdstructuur
De ruimtelijke hoofdstructuur toont de essentie en de samenhang van verschillende ruimtelijke beleidskeuzes uit de Omgevingsvisie. Het integrale kaartbeeld van de ruimtelijke hoofdstructuur is opgebouwd uit de volgende kaartbeelden:
  • het dagelijks stedelijk systeem, dat bestaat uit de stedelijke agglomeratie en de daarmee via hov (hoogwaardig openbaar vervoer) verbonden regiokernen;
  • de hoogstedelijke zone tussen Leiden en Dordrecht;
  • het logistiek-industriële systeem van mainport, greenports langs vaarwegen en zware infrastructuur;
  • de samenhang van grote landschappelijke eenheden met de stedelijke agglomeratie;
  • de groene ruimte en de groenblauwe structuur;
  • het bodem- en watersysteem;
  • energie.
  1. Ambities en sturing
De provincie wil meer vertrouwen geven aan maatschappelijke initiatieven. De provincie werkt daarom vanuit een aantal sturingsprincipes: opgavegericht, provinciaal belang en maatwerk.
 
De provincie heeft zes richtinggevende ambities in de fysieke leefomgeving. Deze ambities zijn geworteld in de historie, ligging en economische structuur van Zuid-Holland en zijn gekoppeld aan de strategische uitdagingen waar de regio voor staat. De provincie heeft de volgende ambities:
  • naar een klimaatbestendige delta;
  • naar een nieuwe economie: the next level;
  • naar een levendig meerkernige metropool;
  • energievernieuwing;
  • best bereikbare provincie;
  • gezonde en aantrekkelijke leefomgeving.
  1. Omgevingskwaliteit
Onder 'omgevingskwaliteit' wordt verstaan: het geheel aan kwaliteiten die de waarde van de fysieke leefomgeving bepalen. De volgende onderdelen vormen de basis van de omgevingskwaliteit:
  • een beschrijving van de unieke kwaliteiten van Zuid-Holland: de drie deltalandschappen, de Zuid-Hollandse steden en de strategische ligging in internationale netwerken;
  • een beschrijving van de bestaande omgevingskwaliteit op basis van de leefomgevingstoets, met aandacht voor aspecten van milieukwaliteit. Hiertoe implementeert de provincie de beleidscyclus en monitor Omgevingskwaliteit;
  • een nadere uitwerking van het provinciale beleid voor het verbeteren van de ruimtelijke kwaliteit, op basis van de 'kwaliteitskaart' en de 'richtpunten ruimtelijke kwaliteit'.
  1. Beleidskeuzes
De provincie heeft in de Omgevingsvisie een overzicht gemaakt van samenhangende beleidskeuzes.  De ruimtelijke hoofdstructuur maakt met een integraal kaartbeeld inzichtelijk hoe de strategische beleidskeuzes uit de Omgevingsvisie ruimtelijk samenkomen. De voor onderhavig plan relevante beleidsuitgangspunten uit de Omgevingsvisie worden hierna behandeld.
 
Planspecifiek
De ontwikkeling sluit aan bij de beleidskeuze: 'Behoud en versterking ruimtelijke kwaliteit'. Met deze beleidskeuze geeft de provincie richting en ruimte aan een optimale wisselwerking tussen ruimtelijke ontwikkelingen en gebiedskwaliteit. In de gehele provincie, zowel in het stedelijk gebied als in het landelijk gebied, beoogt het kwaliteitsbeleid een ‘ja, mits-beleid’: ruimtelijke ontwikkelingen zijn mogelijk, met behoud of versterking van de ruimtelijke kwaliteit (waarborg ruimtelijke kwaliteit). Het ruimtelijk kwaliteitsbeleid bestaat uit een viertal kwaliteitskaarten, samengevat in één integrale kwaliteitskaart. Dit beleid maakt naar zijn aard meerdere uitleg mogelijk. Vanuit de nieuwe sturingsfilosofie is dit een kans en geen bedreiging. Gelet op het gezamenlijke belang is een gedeelde opvatting over de uitleg en interpretatie van het kwaliteitsbeleid per concreet gebied wenselijk. De kwaliteitskaart en de richtpunten geven richting aan de interpretatie van ruimtelijke kwaliteit. Onderstaand zullen de relevante kaartlagen van de kwaliteitskaart en de bijbehorende richtpunten nader worden omschreven.
  
Laag van de ondergrond
Volgens de kaart 'laag van de ondergrond' is het plangebied gelegen in het 'Rivierdeltacomplex - Jonge zeeklei'. Zoals overal in Zuid-Holland heeft het water en het menselijk handelen grote invloed gehad op de geomorfologie van dit deel van de provincie. Het land in de delta is vergroot door aanleg van dijken rond droogvallende gronden. Ontwikkelingen dragen bij aan het behoud van ruimte voor dynamische natuurlijke processen en zoet-zoutovergangen in de deltawateren en natuurlijke buitendijkse gebieden. De planlocatie ligt in het bestaand stedelijk gebied met bebouwing. De ontwikkeling heeft dan ook geen invloed op de ligging in het 'Rivierdeltacomplex - Jonge zeeklei'.
 
Laag van de stedelijke occupatie
Het plangebied is gelegen binnen de kaartlaag 'Steden en dorpen' en deels binnen de kaartlaag 'Stads- en dorpsranden'. Elk dorp ontwikkelt zijn eigen identiteit en bouwt voort op haar karakteristieke structuur en ligging aan en in het landschap. Het dorp is deel van het omringende landschap, doordat onderliggende patronen herkenbaar zijn in de structuur van het dorp. Rond het plangebied zijn verschillende maatschappelijke functies en bedrijven aanwezig. Ontwikkelingen in de steden en dorpen dragen bij aan de karakteristieke kenmerken en identiteit. Daarnaast is de groen- en waterstructuur van belang. De ontwikkeling van de hospice vervangt een bestaand gebouw. Ten opzichte van de huidige situatie krijgt het gebied een groenere uitstraling. Het plangebied is in de huidige situatie al goed ontsloten.
             
Conclusie
Met de beoogde ontwikkeling zijn er geen belemmeringen vanuit de Omgevingsvisie. De ruimtelijke kwaliteit wordt niet aangetast. De beoogde ontwikkeling past binnen de Omgevingsvisie en is in lijn met de provinciale ambities.
 
3.2.2 Omgevingsverordening Zuid-Holland
Tegelijk met de Omgevingsvisie is de Omgevingsverordening op 1 augustus 2020 in werking getreden. De Omgevingsverordening omvat in aanvulling op de Omgevingsvisie toetsbare criteria waaraan planvorming moet voldoen. 
 
Ruimtelijke kwaliteit
In artikel 6.9 van de Omgevingsverordening is opgenomen dat een bestemmingsplan, onder de volgende voorwaarden ten aanzien van ruimtelijke kwaliteit, kan voorzien in een nieuwe ruimtelijke ontwikkeling:
  1. de ruimtelijke ontwikkeling past binnen de bestaande gebiedsidentiteit, voorziet geen wijziging op structuurniveau, past bij de aard en schaal van het gebied en voldoet aan de relevante richtpunten van de kwaliteitskaart (inpassen);
  2. als de ruimtelijke ontwikkeling past binnen de bestaande gebiedsidentiteit, maar wijziging op structuurniveau voorziet (aanpassen), wordt deze uitsluitend toegestaan mits de ruimtelijke kwaliteit per saldo ten minste gelijk blijft door:
    1. zorgvuldige inbedding van de ontwikkeling in de omgeving, rekening houdend met de relevante richtpunten van de kwaliteitskaart, en
    2. het zo nodig treffen van aanvullende ruimtelijke maatregelen zoals bedoeld in het derde lid;
  3. als de ruimtelijke ontwikkeling niet past bij de bestaande gebiedsidentiteit (transformeren), wordt deze uitsluitend toegestaan mits de ruimtelijke kwaliteit van de nieuwe ontwikkeling is gewaarborgd door:
    1. een integraal ontwerp, waarin behalve aan de ruimtelijke kwaliteit van het gehele gebied ook aandacht is besteed aan de fysieke en visuele overgang naar de omgeving en de fasering in ruimte en tijd, alsmede rekening is gehouden met de relevante richtpunten van de kwaliteitskaart, en
    2. het zo nodig treffen van aanvullende ruimtelijke maatregelen zoals bedoeld in het derde lid.   
Ten aanzien van ruimtelijke kwaliteit is sprake van een vorm van inpassen (sub a), omdat de ontwikkeling zich afspeelt op het niveau van een kavel, binnen het bestaand stedelijk gebied. Met de stedenbouwkundige invulling van het beoogde gebouw is zoveel mogelijk rekening gehouden met de bestaande gebiedsidentiteit. De relevante richtpunten van de kwaliteitskaart zijn in  toelichting paragraaf 3.2.1 toegelicht. Hieruit blijkt dat de beoogde plannen aan de relevante richtpunten van de kwaliteitskaart voldoen.
 
Ladder voor duurzame verstedelijking
In artikel 6.10 van de Omgevingsverordening is opgenomen dat een bestemmingsplan dat een nieuwe stedelijke ontwikkeling mogelijk maakt, moet voldoen aan de volgende eisen:
  1. de toelichting van het bestemmingsplan gaat in op de toepassing van de ladder voor duurzame verstedelijking overeenkomstig artikel 3.1.6, tweede, derde en vierde lid van het Besluit ruimtelijke ordening;
  2.  indien in de behoefte aan de stedelijke ontwikkeling niet binnen bestaand stads- en dorpsgebied kan worden voorzien en voor zover daarvoor een locatie groter dan 3 hectare nodig is, wordt gebruik gemaakt van locaties die zijn opgenomen in het Programma ruimte.  
Bij het voorgenomen plan is in toelichting paragraaf 3.1.3 ingegaan op de ladder voor duurzame verstelijking. Sub b is niet van toepassing, omdat de ontwikkeling binnen het bestaand stads- en dorpsgebied is voorzien. Daarmee wordt er voldaan aan artikel 6.10 van de Omgevingsverordening.
 
Conclusie 
Gezien het voorgaande dient er geconcludeerd te worden dat er geen belemmeringen zijn vanuit de Omgevingsverordening voor de onderhavige nieuwe ontwikkelingen.
 
3.3 Gemeentelijk beleid
3.3.1 Ruimtelijke structuurvisie Leiderdorp
De kwaliteiten van Leiderdorp zoals de ligging in de Randstad, het dorpse karakter met rust en ruimte, voorzieningen, de polders en de ligging nabij Leiden, zorgen ervoor de Leiderdorp een aantrekkelijke plek om te wonen, werken en recreëren is.
 
In de Ruimtelijke structuurvisie Leiderdorp worden de ambities voor de toekomst geschetst. Hierin worden de ruimtelijke ontwikkelingen die de komende 20 jaar van belang zijn benoemd, rekening houden met trends in de samenleving, zoals vergrijzing en veranderende mobiliteit. De structuurvisie is een plan op hoofdlijnen die de gebiedsgerichte en thematische kaders van het ruimtelijk beleid weergeeft.
 
Planspecifiek
Volgens de visiekaart ligt het plangebied in een hoogdynamisch gebied. Dit zijn gebieden waar een bewuste veranderingswens bestaat of gebieden die getransformeerd moeten worden.  
 
De hoogdynamische gebieden zijn: Winkelhof en Statenhof, de Baanderij, de A4-zone en bedrijventerrein Lage Zijde. De planlocatie ligt in de A4-zone. In dit gebied ziet de gemeente kansen en noodzaak voor transformatie en functionele verandering. Het plangebied ligt in een gebied waar al veel zorgfuncties aanwezig zijn. De te (her)ontwikkelen locaties in dit gebied kunnen met een mix van zorg en wonen worden ingevuld. Hierbij kan aansluiting gezocht worden bij de aangrenzende woonwijken.
 
De herontwikkeling van het plangebied, waarbij een hospice mogelijk gemaakt wordt, is dan ook passend in dit gebied. Gesteld kan worden dat het voorliggende wijzigingsplan in lijn is met de ambities uit de Ruimtelijke structuurvisie Leiderdorp.
 
4 Haalbaarheid van het wijzigingsplan
In de regels van het geldende bestemmingsplan 'W4', vastgesteld op 14 juli 2014 door de raad van de gemeente Leiderdorp, is voor de bestemming 'Maatschappelijk' in artikel 8.5 een wijzigingsbevoegdheid opgenomen. Deze wijzigingsbevoegdheid luidt als volgt:
 
Burgemeester en wethouders kunnen het plan wijzigen voor het toevoegen of verwijderen van aanduidingen ten behoeve van het toestaan of verwijderen van maatschappelijke voorzieningen die als geluidsgevoelige functie of kwetsbaar object zijn aangemerkt, mits:
  1. ter plaatse een aanvaardbaar woon- en leefklimaat kan worden gerealiseerd;
  2. de Omgevingsdienst om advies is gevraagd.
Toetsing wijzigingsbevoegdheid
Ad a.)
In toelichting hoofdstuk 5 worden de milieu- en omgevingsaspecten nader behandeld. Hieruit blijkt dat er vanuit milieuhygiënisch oogpunt geen belemmeringen zijn voor de beoogde ontwikkeling. Geconcludeerd kan worden dat er sprake is van een aanvaardbaar woon- en leefklimaat. 
 
Ad b.)
De Omgevingsdienst West-Holland heeft in maart en april 2020 twee adviezen over diverse milieuaspecten uitgebracht. Deze adviezen zijn meegenomen in toelichting hoofdstuk 5 van het voorliggende wijzigingsplan. Voor de realisatie van de hospice op de locatie Hoogmadeseweg 70 te Leiderdorp is een hogere waarde noodzakelijk. In het (ontwerp) hogere waarde besluit, welk besluit tegelijk met de wijzigingsbevoegdheid ter visie zal worden gelegd, constateert de Omgevingsdienst dat er sprake is van een acceptabel woon- en leefklimaat.
5 Omgevingsaspecten
 
5.1 Milieueffectrapportage
De milieueffectrapportage (m.e.r.) is een hulpmiddel om bij diverse procedures het milieubelang een volwaardige plaats in de besluitvorming te geven. Een m.e.r. is verplicht bij de voorbereiding van plannen en besluiten van de overheid over initiatieven en activiteiten van publieke en private partijen die belangrijke nadelige gevolgen voor het milieu kunnen hebben. De m.e.r. is wettelijk verankerd in hoofdstuk 7 van de Wet milieubeheer. Naast de Wet milieubeheer is het Besluit m.e.r. belangrijk om te kunnen bepalen of bij de voorbereiding van een plan of een besluit de m.e.r.-procedure moet worden doorlopen. Bij toetsing aan het Besluit m.e.r. zijn er vier mogelijkheden:
  1. het plan of besluit is direct m.e.r.- plichtig;
  2. het plan of besluit bevat activiteiten uit kolom 1 van onderdeel D, en ligt boven de (indicatieve) drempelwaarden, zoals beschreven in kolom 2 ‘gevallen’, van onderdeel D. Het besluit moet eerst worden beoordeeld om na te gaan of er sprake is van m.e.r.-plicht: het besluit is dan m.e.r.- beoordelingsplichtig. Voor een plan in kolom 3 ‘plannen’ geldt geen m.e.r.-beoordelingsplicht, maar direct een (plan-)m.e.r.-plicht;
  3. het plan of besluit bevat wel de activiteiten uit kolom 1, maar ligt beneden de drempelwaarden, zoals beschreven in kolom 2 ‘gevallen’, van onderdeel D: er dient in overleg met de aanvrager van het bijbehorende plan of besluit beoordeeld te worden of er aanleiding is voor het uitvoeren van een m.e.r.-beoordeling (als sprake is van een besluit) of het direct uitvoeren van een m.e.r. (als sprake is van een plan). Deze keuze wordt uiteindelijk in het bijbehorende plan of besluit gemotiveerd;
  4. de activiteit(en) of het betreffende plan en/of besluit worden niet genoemd in het Besluit m.e.r.: er geldt geen m.e.r.(-beoordelings)plicht.
Sinds 16 mei 2017 geldt er een directe werking van het Europees recht. Daarom is per 7 juli 2017 het gewijzigde Besluit m.e.r. in werking getreden. In de gewijzigde Besluit m.e.r. staat de nieuwe procedure voor de vormvrije m.e.r.-beoordeling. Voor elke aanvraag, waarbij een vormvrije m.e.r.-beoordeling aan de orde is, moet:
  • door de initiatiefnemer een aanmeldingsnotitie worden opgesteld;
  • het bevoegd gezag binnen 6 weken een m.e.r.-beoordelingsbesluit nemen. Dit besluit hoeft niet in de Staatscourant gepubliceerd te worden;
  • de initiatiefnemer het (vormvrije) m.e.r.-beoordelingsbesluit bij de vergunningaanvraag voegen (artikel 7.28 Wet milieubeheer).
De artikelen 7.16 tot en met 7.20a Wm zijn in de nieuwe wetgeving voor alle in het Besluit m.e.r. genoemde activiteiten van de D-lijst van toepassing.
 
Planspecifiek
Uit een uitspraak van de Afdeling Bestuursrechtspraak van de Raad van State (ECLI:NL:RVS:2018:2414, 18 juli 2018) dat het antwoord op de vraag of er sprake is van een (wijziging van een) stedelijk ontwikkelingsproject in de zin van het Besluit milieueffectrapportage afhangt van de concrete omstandigheden van het geval, waarbij onder meer aspecten als aard en omvang van de voorziene wijzigingen van de stedelijke ontwikkeling een rol spelen. Daarbij mogen de bestaande planologische mogelijkheden worden meegewogen bij de vraag of er sprake is van een stedelijke ontwikkeling. Met het voorliggende plan wordt de bestaande bebouwing gesloopt. Hiervoor in de plaats wordt een gebouw met een kleiner ruimtebeslag teruggebouwd. Daarmee nemen de bebouwingsmogelijkheden niet toe in vergelijking met de bestaande (planologische) situatie. Er kan dan ook gesteld worden dat er geen sprake is van een stedelijk ontwikkelingsproject. Dit betekent dat het Besluit milieueffectrapportage niet van toepassing is en dat er geen m.e.r.(-beoordelings)plicht geldt.
  
Desondanks zijn in het kader van dit ruimtelijk plan de belangrijkste milieuaspecten waaronder bodem, luchtkwaliteit, geluid, externe veiligheid en ecologie in beeld gebracht. Hieruit is niet gebleken dat er sprake is van een ontwikkeling die een forse invloed heeft op het milieu. Belangrijke milieugevolgen kunnen worden uitgesloten. De huidige onderzoeken geven voldoende inzicht in de milieugevolgen om een gewogen besluit omtrent dit ruimtelijke plan te nemen.
5.2 Milieu
5.2.1 Bodem
Ten behoeve van een goede ruimtelijke ordening moet worden aangetoond dat de kwaliteit van de bodem en het grondwater in het plangebied in overeenstemming zijn met het beoogde gebruik. Dit is geregeld in de Wet bodembescherming. Ontwikkelingen kunnen pas plaatsvinden als de bodem waarop deze ontwikkelingen plaatsvinden geschikt is of geschikt is gemaakt voor het beoogde doel.
 
Bij een bestemmingswijziging is een bodemonderzoek slechts noodzakelijk, indien de bestemmingswijziging tevens een wijziging naar een strenger bodemgebruik inhoudt. Bij een bestemmingswijziging die een gelijkblijvend of minder streng bodemgebruik oplevert, is de bodemkwaliteit in het kader van de bestemmingswijziging niet relevant en is bodemonderzoek niet noodzakelijk.
 
Planspecifiek
Met de voorgenomen herontwikkeling wordt het bestaande gebouw gesloopt. Hiervoor in de plaats wordt een hospice gerealiseerd. Om aan te tonen of de milieu-hygiënische kwaliteit van de bodem geschikt is voor het beoogde gebruik is een bodemonderzoek uitgevoerd (27 november 2020, IDDS, zie bijlagen bij toelichting bijlage 1). Naar aanleiding van het aantreffen van enkele matige verontreinigingen is aansluitend op het verkennend bodemonderzoek een nader bodemonderzoek uitgevoerd, waarmee de aard en omvang van de verontreinigingen zijn vastgesteld.
 
Op basis van de onderzoeksresultaten wordt het navolgende geconcludeerd:
  • Er is sprake van een zandige toplaag, welke over vrijwel de gehele onderzoekslocatie aanwezig is. In de toplaag zijn zintuiglijk bijmengingen met bodemvreemde materialen waargenomen. Het gaat met name om een zwakke tot sterke bijmenging met metselpuin en baksteen. De zandige toplaag ter plaatse is overwegend licht verontreinigd met cadmium, koper, kwik, lood, zink en PAK.
  • In de kleiige ondergrond zijn slechts plaatselijk bijmengingen waargenomen met metselpuin en baksteen. Betreffende laag is licht verontreinigd met kwik, lood, zink, PAK, PCB en minerale olie. Plaatselijk is de kleilaag matig verontreinigd met lood.
  • De voormalige bovengrond ter plaatse van de onderzoekslocatie is niet verontreinigd met OCB (bestrijdingsmiddelen).
  • In de bodem is zowel zintuiglijk als analytisch geen asbest aangetoond.
  • Het grondwater is licht verontreinigd met barium en licht tot matig verhoogd met nikkel.
  • Ter plaatse van het met asbest verontreinigde kruipluik is geconstateerd dat de verontreiniging tijdens het veldbezoek nog niet gesaneerd is. De bodem ter plaatse van het kruipluik is (indicatief) niet verontreinigd met asbest. 
Vermoedelijk is de matige verontreiniging met lood een zogeheten ‘spot’, welke plaatselijk kan voorkomen. De betreffende verhoging vormt geen belemmering voor het beoogde plan.
 
Indien op de onderzoekslocatie ten gevolge van graafwerkzaamheden grond vrijkomt en buiten de locatie wordt hergebruikt, vindt hergebruik veelal plaats binnen het kader van het Besluit bodemkwaliteit. In dat geval dient de chemische kwaliteit van de grond te worden getoetst aan de kwaliteitsnormen die door het Besluit bodemkwaliteit aan de betreffende toepassing worden verbonden.
 
De verontreiniging met asbest in de kruipruimte en de ruimte waarin het kruipluik zich bevindt is inmiddels verwijderd door een hiervoor erkend bedrijf.
 
Geconcludeerd kan worden dat het aspect bodem geen belemmeringen veroorzaakt voor de beoogde ontwikkeling.
 
5.2.2 Luchtkwaliteit
In de Wet Milieubeheer gaat paragraaf 5.2 over luchtkwaliteit. Deze paragraaf vervangt het Besluit Luchtkwaliteit 2005 en staat ook wel bekend als de ‘Wet luchtkwaliteit’. De Wet luchtkwaliteit introduceert het onderscheid tussen 'kleine' en 'grote' projecten. Kleine projecten dragen 'niet in betekenende mate' (NIBM) bij aan de verslechtering van de luchtkwaliteit. Een paar honderd grote projecten dragen juist wel 'in betekenende mate' bij aan de verslechtering van de luchtkwaliteit. Het gaat hierbij vooral om bedrijventerreinen en infrastructuur (wegen).
 
Wat het begrip 'in betekenende mate' precies inhoudt, staat in een de algemene maatregel van bestuur ‘Niet in betekenende mate bijdragen’ (Besluit NIBM). Op hoofdlijnen komt het erop neer dat 'grote' projecten die jaarlijks meer dan 3 % bijdragen aan de jaargemiddelde norm voor fijnstof (PM10) en stikstofdioxide (NO2) (1,2 µg/m³) een 'betekenend' negatief effect hebben op de luchtkwaliteit. 'Kleine' projecten die minder dan 3 % bijdragen, kunnen doorgaan zonder toetsing. Dat betekent bijvoorbeeld dat lokale overheden een woonwijk van minder dan 1.500 woningen niet hoeven te toetsen aan de normen voor luchtkwaliteit. Deze kwantitatieve vertaling naar verschillende functies is neergelegd in de 'Regeling niet in betekenende mate bijdragen'.
 
Een belangrijk onderdeel voor de verbetering van de luchtkwaliteit is het Nationale Samenwerkingsprogramma Luchtkwaliteit (NSL). Binnen dit NSL, dat sinds 1 augustus 2009 in werking is, werken het Rijk, de provincies en gemeenten samen om de Europese eisen voor luchtkwaliteit te realiseren.
 
Vanaf 1 januari 2015 geldt er ook een grenswaarde voor een kleinere fractie van fijnstof namelijk PM2,5. De grenswaarde voor PM2,5 bedraagt 25 µg/m³. Gezien het grote verschil tussen de grenswaarde en de achtergrondconcentratie zullen overschrijdingen van deze grenswaarde niet vaak voorkomen. Het blijkt dat als de grenswaarde voor PM10 niet wordt overschreden, er geen overschrijding van de grenswaarde voor PM2,5 zal zijn. Het is de verwachting dat door het schoner worden van de autotechniek de concentratie van met name stikstofdioxide in de toekomst nog verder afneemt.
 
Planspecifiek
Het voorliggende wijzigingsplan maakt een hospice mogelijk. Het project is aan te merken als een project van 'niet in betekenende mate'. Toetsing van het aspect luchtkwaliteit is daardoor, op grond van artikel 4 van de Regeling NIBM, niet noodzakelijk.
 
In het kader van een goede ruimtelijke ordening is met behulp van de 'Atlas leefomgeving' gekeken naar de luchtkwaliteit in en rondom het plangebied. De achtergrondconcentraties over 2019 van fijnstof (PM10 en PM2,5) en stikstofdioxide (NO2) nabij het plangebied bedragen respectievelijk maximaal 18 μg/m³, 10 μg/m³ en 21 µg/m³. Daarmee wordt ruimschoots voldaan aan de wettelijke grenswaarden van 40 μg/m³ voor fijnstof PM10 en stikstofdioxide en 25 µg/m³ voor fijnstof PM2,5.
 
De WHO hanteert de volgende advieswaarden voor fijnstof PM10 en PM2,5:
  • PM10: 20 μg/m³;
  • PM2,5: 10 μg/m³.
Ook aan de advieswaarden van de WHO wordt voldaan. Daarnaast zullen auto's in de toekomst 'schoner' worden en minder stikstofdioxide en fijnstof uitstoten, waardoor de luchtkwaliteit zal verbeteren.
 
Het aspect luchtkwaliteit vormt geen belemmering voor de uitvoerbaarheid van de voorgenomen ontwikkeling.
 
5.2.3 Geluid
De mate waarin het geluid, het woonmilieu mag belasten, is geregeld in de Wet geluidhinder (Wgh). De kern van de wet is dat geluidsgevoelige objecten worden beschermd tegen geluidhinder uit de omgeving. In de Wgh worden de volgende objecten beschermd (artikel 1 Wgh):
  • woningen;
  • geluidsgevoelige terreinen (bij algemene maatregel van bestuur als zodanig aangewezen terrein dat vanwege de bestemming of het gebruik daarvan bijzondere bescherming tegen geluid behoeft);
  • andere geluidsgevoelige gebouwen (bij algemene maatregel van bestuur als zodanig aangewezen gebouw dat vanwege de bestemming of het gebruik daarvan bijzondere bescherming tegen geluid behoeft, niet zijnde een woning).
Het beschermen van deze geluidsgevoelige objecten gebeurt aan de hand van vastgestelde zoneringen. De belangrijkste geluidsbronnen die in de Wet geluidhinder worden geregeld zijn: industrielawaai, wegverkeerslawaai en spoorweglawaai.
 
De meest voorkomende vorm van geluidhinder is degene die wordt veroorzaakt door het wegverkeer. Zo stelt de wet dat in principe de geluidsbelasting op woningen de voorkeursgrenswaarde van 48 dB niet mag overschrijden. De voorkeursgrenswaarden is de waarde die zonder meer kan worden toegestaan. Indien nieuwe geluidsgevoelige functies worden toegestaan, stelt de Wet geluidhinder de verplichting akoestisch onderzoek te verrichten naar de geluidsbelasting ten gevolge van alle wegen, met uitzondering van 30 km/uur wegen, op een bepaalde afstand van de geluidsgevoelige functie(s). Indien na akoestisch onderzoek blijkt dat de grenswaarden van de gevelbelasting worden overschreden dient er een ontheffing te worden verkregen via een hogere voorkeursgrenswaarde procedure. De maximale ontheffingswaarde voor nieuw te bouwen woningen in stedelijk gebied is 63 dB.
 
Planspecifiek
Een hospice is een geluidgevoelige object zoals bedoeld in de Wet geluidhinder (Wgh). Het plangebied is niet gelegen binnen de onderzoekszone van een spoorweg, waardoor akoestisch onderzoek naar spoorweglawaai niet noodzakelijk is. Wel ligt het plangebied binnen de onderzoekszone van de Simon Smitweg, Persant Snoepweg en Willem Alexanderlaande en de rijksweg A4. Tevens ligt aan de oostzijde van het plangebied een milieustraat. Derhalve is een akoestisch onderzoek naar wegverkeerlawaai en industrielawaai uitgevoerd (23 februari 2021, Akoestisch Adviesbureau Mosch, zie bijlagen bij toelichting bijlage 2).
 
Resultaten wegverkeerlawaai
Uit de rekenresultaten blijkt het volgende:
 
WegWettelijke aftrek art. 110g WghMaximale geluidbelasting na aftrek
Rijksweg A42-4 dB53 dB
Simon Smitweg5 dB40 dB
Persant Snoepweg5 dB39 dB
Willem Alexanderlaan5 dB29 dB
Hoogmadeseweg (30 km/uur)5 dB48 dB
 
Voor de wegen Simon Smitweg, Persant Snoepweg, Willem Alexanderlaan en Hoogmadeseweg geldt dat er voldaan wordt aan de voorkeursgrenswaarde van 48 dB. Voor de Rijksweg A4 wordt er voldaan aan de maximaal toelaatbare geluidbelasting van 53 dB.
 
De geluidisolatie van de buitengevel kan gedimensioneerd worden op de berekende geluidbelasting als gevolg van wegverkeer. Door een goede geluidwering van de gevel kunnen de optredende binnengeluidniveaus beperkt worden, waardoor in de hospice sprake is van een acceptabel woon- en leefklimaat.
 
Resultaten industrielawaai
Uit de resultaten blijkt dat het langtijdgemiddelde beoordelingsniveau ten gevolge van de activiteiten van de milieustraat op de gevel van de hospice maximaal 53 dB etmaalwaarde bedraagt. Daarmee wordt de grenswaarde van 50 dB uit het Activiteitenbesluit met maximaal 3 dB overschreden. Voor de maximale geluidbelasting bedraagt de maximale etmaalwaarde 79 dB. Daarmee wordt de grenswaarde van 70 dB uit het Activiteitenbesluit met maximaal 9 dB overschreden.
 
De piekniveaus worden veroorzaakt door laad- en losbewegingen, zoals het inwerpen van lichtfracties, inwerpen van zware fracties in lege containers en het dichtslaan van autoportieren. De piekniveaus vinden allen plaats gedurende de dagperiode. De in de dagperiode opgenomen waarden voor maximale geluidniveaus gelden niet vooractiviteiten die van toepassing zijn op laad- en losactiviteiten.
 
Maatregelen
Als overdrachtsmaatregel is het plaatsen van een geluidwal of -scherm langs de erfgrens effectief als afscherming van het geluid van de milieustraat. Om de geluidbelasting van de milieustraat op de hospice voldoende te verlagen en te laten voldoen aan de normen, is het volgende scherm nodig:
  • scherm zuidwestzijde, hoogte 2 m, lengte minimaal 11 m;
  • scherm zuidoostzijde, hoogte 3 m, lengte is breedte perceel achterzijde (circa 47 m);
  • scherm noordoostzijde, hoogte 2 m, lengte minimaal 24 m.
Ten aanzien van de uitvoering van het scherm gelden de volgende voorwaarden:
  • het scherm moet dicht zijn en op elkaar aansluiten;
  • mag zowel hard als absorberend worden uitgevoerd;
  • heeft een massa van ten minste 10 kg/m³;
  • mag ook als grondwal worden uitgevoerd.
Het geluidscherm wordt langs de zijde van de milieustraat geplaatst. In de regels van dit wijzigingsplan is hier een voorwaardelijke verplichting voor opgenomen.
  
Resultaten na maatregelen 
Met het plaatsen van een geluidwal- of scherm wordt voor alle wegen voldaan aan de voorkeursgrenswaarde van 48 dB of de maximaal toelaatbare geluidbelasting van 53 dB voor de rijksweg A4.
 
Het langtijdgemiddelde beoordelingsniveau ten gevolge van de activiteiten van de milieustraat op de gevel van de hospice bedraagt met het plaatsen van een geluidwal- of scherm maximaal 49 dB(A) etmaalwaarde. Daarmee wordt de grenswaarde van 50 dB(A) uit het Activiteitenbesluit niet overschreden.
 
De maximale geluidbelasting ten gevolge van de activiteiten van de milieustraat op de gevel van de hospice bedraagt met het plaatsen van een geluidwal- of scherm maximaal 73 dB(A) etmaalwaarde. Daarmee wordt de grenswaarde van 70 dB(A) uit het Activiteitenbesluit met maximaal 3 dB overschreden. De in de dagperiode opgenomen waarden voor maximale geluidniveaus gelden niet voor activiteiten die van toepassing zijn op laad- en losactiviteiten.
 
Cumulatie
De gecumuleerde geluidbelasting als gevolg van wegverkeerlawaai en industrielawaai (milieustraat) op de hospice bedraagt tussen de 54 en 57 dB. Een geluidsniveau van 54 tot 57 dB kan als kwalificatie van het woon- en leefklimaat worden getypeerd als 'redelijk' tot 'matig'.
 
De geluidisolatie van de buitengevel kan gedimensioneerd worden op de berekende geluidbelasting. Door een goede geluidwering van de gevel kunnen de optredende binnengeluidniveaus beperkt worden, waardoor in de hospice sprake is van een acceptabel woon- en leefklimaat. De gevelisolatie wordt berekend voor een geluidbelasting van (gecumuleerd) maximaal 57 dB. De benodigde gevelisolatie bij een binnenniveau van 33 / 28 dB bedraagt hierbij maximaal 24 / 29 dB. De hospice wordt traditioneel gebouwd met een stenen spouwmuur. Er zal balansventilatie worden toegepast, zodat er in de buitengevel geen open verbindingen zijn. Verwacht mag worden dat hiermee kan worden voldaan aan de benodigde gevelisolatie.
 
Hogere waarde
De hospice heeft een geluidluwe zijde aan de noordwestzijde. Er is sprake van een geluidluwe gevel indien de geluidbelasting op deze gevel maximaal 48 dB bedraagt. Voor de geluidbelasting van ten hoogste 53 dB op de gevel als gevolg van wegverkeer op de rijksweg A4 dient bij het bevoegd gezag een hogere waarde aangevraagd te worden.
  
5.2.4 Bedrijven en milieuzonering
Het aspect bedrijven en milieuzonering gaat in op de invloed die bedrijven kunnen hebben op hun omgeving. Deze invloed is afhankelijk van de afstand tussen een gevoelige bestemming en de bedrijvigheid. Milieugevoelige bestemmingen zijn gebouwen en terreinen die naar hun aard bestemd zijn voor het verblijf van personen gedurende de dag of nacht of een gedeelte daarvan (bijvoorbeeld woningen). Daarnaast kunnen ook landelijke gebieden en/of andere landschappen belangrijk zijn bij een zonering tot andere, minder gevoelige, functies zoals bedrijven.
 
Bij een ruimtelijke ontwikkeling kan sprake zijn van reeds aanwezige bedrijvigheid en van nieuwe bedrijvigheid. Milieuzonering zorgt er voor dat nieuwe bedrijven een juiste plek in de nabijheid van de gevoelige functie krijgen en dat de (nieuwe) gevoelige functie op een verantwoorde afstand van bedrijven komen te staan. Doel hiervan is het waarborgen van de veiligheid en het garanderen van de continuïteit van de bedrijven als ook een goed klimaat voor de gevoelige functie.
 
Milieuzonering beperkt zich tot milieuaspecten met een ruimtelijke dimensie zoals: geluid, geur, gevaar en stof. De mate waarin de milieuaspecten gelden en waaraan de milieucontour wordt vastgesteld, is voor elk type bedrijvigheid verschillend. De 'Vereniging van Nederlandse Gemeenten' (VNG) geeft sinds 1986 de publicatie 'Bedrijven en Milieuzonering' uit. In deze publicatie is een lijst opgenomen, met daarin de minimale richtafstanden tussen een gevoelige bestemming en bedrijven. Indien van deze richtafstanden afgeweken wordt dient een nadere motivatie gegeven te worden waarom dat wordt gedaan.
 
Het belang van milieuzonering wordt steeds groter aangezien functiemenging steeds vaker voorkomt. Hierbij is het motto: 'scheiden waar het moet, mengen waar het kan'. Het scheiden van milieubelastende en milieugevoelige bestemmingen dient twee doelen:
  • het reeds in het ruimtelijk spoor voorkomen of zoveel mogelijk beperken van hinder en gevaar bij gevoelige bestemmingen;
  • het bieden van voldoende zekerheid aan de milieubelastende activiteiten (bijvoorbeeld bedrijven) zodat zij de activiteiten duurzaam, en binnen aanvaardbare voorwaarden, kunnen uitoefenen.
Planspecifiek
In de directe omgeving van het plangebied zijn verschillende functies aanwezig, zoals maatschappelijk, bedrijvigheid en wonen. De omgeving van het plangebied kan dan ook gezien worden als een gemengd gebied, waardoor de richtafstanden uit de VNG-publicatie 'Bedrijven en Milieuzonering' met één stap verminderd kunnen worden.
  
In de navolgende tabel staan de bedrijven en milieubelastende activiteiten in de omgeving van het plangebied weergegeven.
 
AdresSoort bedrijfSBI-2008MilieucategorieRichtafstand gemengd gebiedAfstand tot de hospice
Hoogmadeseweg 55Verpleeghuis871210 m35 m
Hoogmadeseweg 66Uitvaartcentrum960310 m 35 m
Hoogmadeseweg 68A
Taxibedrijf
(steenhandel toegestaan)
493210 m22 m
Simon Smitweg 9Gemeentewerf3813.130 m 10 m
Simon Smitweg 11Brandweerkazerne84253.13030 m
Willem Alexanderlaan 1Gemeentehuis8410 m 85 m
  
Voor de meeste omliggende bedrijven en milieubelastende activiteiten geldt dat er voldaan wordt aan de gestelde richtafstand. Het voormalige politiebureau aan de Hoogmadeseweg 72 wordt omgebouwd tot woningen.
 
Hoogmadeseweg 68A
Op het perceel van de Hoogmadeseweg 68A is momenteel een taxibedrijf gevestigd. De taxi's worden hier gestald. Met een afstand van 22 m tot het bedrijf wordt er voldaan aan de gestelde richtafstand van 10 m in een gemengd gebied. Op het perceel zelf vinden er nauwelijks activiteiten plaats. Op enkele momenten zullen de taxi's via de inrit aan de westzijde van het perceel wegrijden en aankomen. Deze inrit bevindt zich op een afstand van ca. 50 m, waardoor de mogelijke hinder minimaal is.
 
Volgens het geldende bestemmingsplan is aan de Hoogmadeseweg 68A ook een steenhandel toegestaan. Een steenhandel dient beschouwd te worden als een groothandel in hout en bouwmaterialen (SBI-2008 4673). Bij een bedrijfsoppervlak van ten hoogste 2.000 m² is dit een bedrijf van milieucategorie 2. Gezien de omvang van het bestemmingsvlak 'Bedrijf (ca. 1.000 m²) kan ook voor de steenhandel uitgegaan worden van milieucategorie 2. Er wordt voldaan aan de richtafstand van 10 m in een gemengd gebied. Daarnaast is er volgens het geldende bestemmingsplan ten noordwesten van de bedrijfsbestemming aan de Hoogmadeseweg 68 een burgerwoning toegestaan. Deze woning kan gezien worden als maatgevend, waardoor het bedrijf niet verder belemmerd zal worden door de realisatie van de hospice.  
 
Simon Smitweg 9
Ten oosten van de beoogde hospice bevindt zich op een afstand van ca. 10 m een gemeentewerf. Hiervoor geldt de milieucategorie 3.1 met een richtafstand van 30 m in een gemengd gebied. In toelichting paragraaf 5.2.3 is ingegaan op deze inrichting. Hierin wordt geconcludeerd dat, na het treffen van maatregelen, sprake zal van een aanvaardbaar woon- en leefklimaat.
 
Voor de aspecten stof en gevaar geldt bij een gemeentewerf een richtafstand van 10 m. Het opslaan en overslaan van bouwafval, sloopafval en puin in containers vindt plaats op een afstand van meer dan 10 m. Daarnaast wordt de opslag van grond zand en stenen afgeschermd met een betonnen keerwand van 2 m hoog. Stofhinder zal dan ook zeer gering zijn en er zal sprake zijn van een aanvaardbaar woon- en leefklimaat.
 
Ook de opslag van mogelijke opslag die relevant is voor gevaar vindt plaats op een afstand van meer dan 10 m. Op grond van de huidige bedrijfsvoering is het aspect gevaar geen belemmering. Daarnaast kan er geurhinder optreden. Van geurhinder vanwege groenafval zal geen sprake zijn omdat er op het terrein geen compostisering plaatsvindt. Het huishoudelijke afval wordt opgeslagen in gesloten containers, waardoor er sprake is van een aanvaardbaar woon- en leefklimaat.
 
Simon Smitweg 11
Er wordt voldaan aan richtafstand van 30 m voor de brandweerkazerne. Bij een brandweerkazerne vinden vaak oefeningen plaats die in dit geval mogelijk op de locatie van de gemeentewerf plaatsvinden. Uit nadere informatie blijken brandweeroefeningen hier echter zelden (hooguit 1x per kwartaal plaats) plaats te vinden. Deze oefeningen vinden plaats aan de voorzijde van de brandweerkazerne, niet op de gemeentewerf. Verder blijkt dat de brandweer rond 2022 gaat verhuizen naar Leiden. Het geluidemissie afkomstig van de brandweerkazerne heeft dan ook noemenswaardige negatieve uitwerking op het woon- en leefklimaat ter plaatse van de beoogde hospice.
 
Hospice
De afstand van de beoogde hospice tot woningen in de omgeving bedraagt minimaal 25 m. De afstand is, gezien de aard en de omvang van de activiteiten van de hospice, voldoende om hinder uit te kunnen sluiten. Het uitvoeren van een onderzoek naar de optredende geluidniveaus op de woningen in de omgeving als gevolg van de hospice is niet noodzakelijk.
  
Conclusie 
Geconcludeerd kan worden dat het aspect bedrijven en milieuzonering geen belemmeringen veroorzaakt voor de beoogde ontwikkeling.
  
5.2.5 Externe veiligheid
Sommige activiteiten brengen risico's op zware ongevallen met mogelijk grote gevolgen voor de omgeving met zich mee. Externe veiligheid richt zich op het beheersen van deze risico's. Het gaat daarbij om onder meer de productie, opslag, transport en het gebruik van gevaarlijke stoffen. Dergelijke activiteiten kunnen een beperking opleggen aan de omgeving. Door voldoende afstand tot de risicovolle activiteiten aan te houden kan voldaan worden aan de normen. Aan de andere kant is de ruimte schaars en het rijksbeleid erop gericht de schaarse ruimte zo efficiënt mogelijk te benutten. Het ruimtelijk beleid en het externe veiligheidsbeleid moeten dus goed worden afgestemd. De wetgeving rond externe veiligheid richt zich op de volgende risico’s:
  • risicovolle (Bevi-)inrichtingen;
  • vervoer gevaarlijke stoffen door buisleidingen;
  • vervoer gevaarlijke stoffen over weg, water of spoor.
Planspecifiek
Voor de beoordeling of in de omgeving van het plangebied risicovolle inrichtingen, transportroutes voor gevaarlijke stoffen en/of buisleidingen aanwezig zijn is de risicokaart geraadpleegd. De navolgende afbeelding toont een uitsnede van deze kaart.
 
Uitsnede risicokaart, plangebied zwart omcirkeld  (bron: Arcgis, Risicokaart)
 
Risicovolle inrichtingen
In de directe omgeving van het plangebied zijn geen risicovolle inrichtingen aanwezig.
 
Transportroutes voor gevaarlijke stoffen
Het plangebied ligt op een afstand van ca. 215 m uit de as van de rijksweg A4. Deze weg maakt onderdeel uit van het basisnet, waarover vervoer van gevaarlijke stoffen plaatsvindt. Het plangebied ligt niet binnen de PR 10-6 contour en het plasbrandaandachtsgebied van de A4. Doordat het plangebied op een grotere afstand dan 200 van de A4 ligt is een groepsrisicoberekening niet noodzakelijk. Wel ligt het plangebied binnen het invloedsgebied, waardoor een beperkte verantwoording van het groepsrisico nodig is.
 
Bij een incident met toxische stoffen op de A4 kan een giftige gaswolk ontstaan die de locatie kan bereiken. Bij een dergelijke calamiteit zijn geen bijzondere voorzieningen nodig om de omvang van een ramp te beperken en om de aanwezige personen veiligheid te bieden. Het sluiten van ramen, deuren en ventilatieroosters, en zoveel mogelijk uitschakelen van ventilatiesystemen na alarmering door de Veiligheidsregio of bericht van NL-Alert, is daarvoor voldoende. In de nabijheid van het plangebied is een WAS-paal aanwezig. Daarnaast wordt er geadviseerd om gebruik te maken van een mechanisch ventilatiesysteem die eenvoudig en centraal uit te schakelen is. Het ontvluchten vanuit het plangebied is voldoende mogelijk. Tevens is de planlocatie goed bereikbaar voor hulpdiensten en is er voldoende bluswater aanwezig voor het bestrijden van een gebouwbrand.
 
Buisleidingen
Op een afstand van ca. 290 m ten zuidoosten van het plangebied ligt een aardgasleiding. Deze leiding heeft een 100% letaliteitsgebied van 70 m. Het 1%-letaliteitsgebied en het invloedsgebied bedraagt 140 m. Daarmee ligt het plangebied op voldoende afstand van de aardgasleiding.
 
Conclusie
Geconcludeerd kan worden dat het aspect externe veiligheid geen belemmeringen veroorzaakt voor de realisatie van de hospice.
   
5.3 Water
De waterhuishouding is van groot belang binnen de ruimtelijke ordening. Door verstandig om te gaan met het water kan verdroging en wateroverlast (waaronder ook risico van overstromingen e.d.) voorkomen worden en de kwaliteit van het water hoog gehouden worden.
 
Op rijksniveau en Europees niveau zijn de laatste jaren veel plannen en wetten gemaakt met betrekking tot water. De belangrijkste hiervan zijn het Waterbeleid voor de 21e eeuw, de Waterwet en het Nationaal Waterplan.
 
Waterbeleid voor de 21e eeuw
De Commissie Waterbeheer 21e eeuw heeft in augustus 2000 advies uitgebracht over het toekomstige waterbeleid in Nederland. De adviezen van de commissie staan in het rapport ‘Anders omgaan met water, Waterbeleid voor de 21e eeuw’ (WB21). De kern van het rapport WB21 is dat water de ruimte moet krijgen, voordat het die ruimte zelf neemt. In het Waterbeleid voor de 21e eeuw worden twee principes (drietrapsstrategieën) voor duurzaam waterbeheer geïntroduceerd:
  • vasthouden, bergen en afvoeren: dit houdt in dat overtollig water zoveel mogelijk bovenstrooms wordt vastgehouden in de bodem en in het oppervlaktewater. Vervolgens wordt zo nodig het water tijdelijk geborgen in bergingsgebieden en pas als vasthouden en bergen te weinig opleveren wordt het water afgevoerd.
  • schoonhouden, scheiden en zuiveren: hier gaat het erom dat het water zoveel mogelijk schoon wordt gehouden. Vervolgens worden schoon en vuil water zoveel mogelijk gescheiden en als laatste komt het zuiveren van verontreinigd water aan bod. 
Waterwet
Centraal in de Waterwet staat een integraal waterbeheer op basis van de ‘watersysteembenadering’. Deze benadering gaat uit van het geheel van relaties binnen watersystemen. Denk hierbij aan de relaties tussen waterkwaliteit, -kwantiteit, oppervlakte- en grondwater, maar ook aan de samenhang tussen water, grondgebruik en watergebruikers. Het doel van de Waterwet is het integreren van acht bestaande wetten voor waterbeheer. Door middel van één watervergunning regelt de wet het beheer van oppervlaktewater en grondwater en de juridische implementatie van Europese richtlijnen, waaronder de Kaderrichtlijn Water. Via de Waterwet gelden verschillende algemene regels. Niet alles is onder algemene regels te vangen en daarom is er de integrale watervergunning. In deze integrale watervergunning zijn zes vergunningen uit eerdere wetten (inclusief keurvergunning) opgegaan in één aparte watervergunning.
 
Nationaal Waterplan
Op basis van de Waterwet is het Nationaal Waterplan vastgesteld door het kabinet. Het Nationaal Waterplan geeft op hoofdlijnen aan welk beleid het Rijk in de periode 2016 - 2021 voert om te komen tot een duurzaam waterbeheer. Het Nationaal Waterplan richt zich op bescherming tegen overstromingen, beschikbaarheid van voldoende en schoon water en de diverse vormen van gebruik van water. Het geeft maatregelen die in de periode 2016 - 2021 genomen moeten worden om Nederland ook voor toekomstige generaties veilig en leefbaar te houden en de kansen die water biedt te benutten.
 
Waterbeheerplan
Voor de planperiode 2016 - 2021 is het Waterbeheerplan (WBP) van hoogheemraadschap van Rijnland van toepassing. In dit plan geeft Rijnland aan wat haar ambities voor de komende planperiode zijn en welke maatregelen in het watersysteem worden getroffen Het WBP legt meer dan voorheen accent op uitvoering.
 
De drie hoofddoelen zijn veiligheid tegen overstromingen, voldoende water en gezond water. Wat betreft veiligheid is cruciaal dat de waterkeringen voldoende hoog en stevig zijn én blijven en dat rekening wordt gehouden met mogelijk toekomstige dijkverbeteringen. Wat betreft voldoende water gaat het erom het complete watersysteem goed in te richten, goed te beheren en goed te onderhouden. Daarbij wil het hoogheemraadschap dat het watersysteem op orde en toekomstvast wordt gemaakt, rekening houdend met klimaatverandering. Immers, de verandering van het klimaat leidt naar verwachting tot meer lokale en heviger buien, perioden van langdurige droogte en zeespiegelrijzing.
 
Keur en beleidsregels 2020
De 'Keur en Beleidsregels' maken het mogelijk dat het hoogheemraadschap haar taken als waterkwaliteits- en kwantiteitsbeheerder kan uitvoeren. De Keur is een verordening van de waterbeheerder met wettelijke regels (gebod- en verbodsbepalingen) voor:
  • Waterkeringen (onder andere duinen, dijken en kaden),
  • Watergangen (onder andere kanalen, rivieren, sloten, beken),
  • Andere waterstaatswerken (o.a. bruggen, duikers, stuwen, sluizen en gemalen).
De Keur bevat verbodsbepalingen voor werken en werkzaamheden in of bij de bovengenoemde waterstaatswerken. Er kan een ontheffing worden aangevraagd om een bepaalde activiteit wel te mogen uitvoeren. Als Rijnland daarin toestemt, dan wordt dat geregeld in een Watervergunning op grond van de Keur. De Keur is daarmee een belangrijk middel om via vergunningverlening en handhaving het watersysteem op orde te houden of te krijgen. In de Beleidsregels, die bij de Keur horen, is het beleid van Rijnland nader uitgewerkt. De meest actuele versies betreffen de Keur Rijnland 2015 en de Uitvoeringsregels Keur 2015.
 
Indien de toename aan verharding minder bedraagt dan 500 m², dan geldt alleen de algemene zorgplicht. Indien de toename meer bedraagt (t/m 5.000 m²) is in de regels opgenomen dat het oppervlak van het ter compensatie aan te leggen water, minimaal 15 % moet bedragen van het oppervlak van de toename aan verharding. Indien nieuwe compensatie moet worden gerealiseerd, moet deze voorafgaand aan het aanbrengen van de verharding zijn gerealiseerd, of gelijktijdig met het aanbrengen van de verharding worden gerealiseerd.
 
Planspecifiek
Watercompensatie
In de huidige situatie bestaat het plangebied voor het grootste gedeelte uit bebouwing en verharding. Met de ontwikkeling wordt de bestaande bebouwing gesloopt en hiervoor in de plaats wordt een nieuw gebouw met een kleinere oppervlakte teruggebouwd. Daarnaast wordt de aanwezig verharding verwijderd en wordt het plangebied opnieuw ingericht met relatief meer groen. Hierdoor zal er de oppervlakte aan verharding ten opzichte van de huidige situatie verminderen. Watercompensatie is derhalve niet noodzakelijk.
 
Waterafvoer
De bebouwing dient te voldoen aan het beleid van het hoogheemraadschap van Rijnland over de afvoer van hemelwater en vuilwater. Dit houdt in dat het hemelwater wordt afgekoppeld en het vuilwater via het riool afgevoerd wordt. De voordelen van het afkoppelen van hemelwater zijn:
  • de riolering wordt ontlast waardoor minder overstorten van ongezuiverd rioolwater optreden; 
  • de zuivering krijgt minder schoon water te verwerken waardoor het zuiveringsrendement verbetert;
  • schoon hemelwater wordt geloosd in het gebied waar het valt, zodat er in droge tijden geen gebiedsvreemd water ingelaten hoeft te worden.
Voor de hospice geldt dat het hemelwater afgekoppeld wordt en het vuilwater wordt aangesloten op het bestaande rioolstelsel. Hiermee wordt voldaan aan het beleid van het hoogheemraadschap van Rijnland.
 
Waterkeringen
Uit het raadplegen van de legger van het hoogheemraadschap van Rijnland blijkt dat er binnen het plangebied geen primaire en/of regionale waterkeringen aanwezig zijn. De meest nabijgelegen waterkering bevindt zich ten oosten van het plangebied. Het plangebied ligt niet binnen de beschermingszone van deze waterkering.
 
Conclusie
Geconcludeerd kan worden dat het aspect water geen belemmeringen vormt voor het beoogde initiatief.
 
5.4 Ecologie
Bij ruimtelijke ingrepen dient rekening te worden gehouden met de natuurwaarden ter plaatse. Daarbij wordt onderscheid gemaakt tussen gebiedsbescherming en soortenbescherming. Ter bescherming van de natuurwaarden is per 1 januari 2017 de Wet natuurbescherming (Wnb) van toepassing. Deze wet vervangt de Natuurbeschermingsweg 1998, de Boswet en de Flora- en faunawet. Doel van de Wet natuurbescherming is drieledig:
  • bescherming van de biodiversiteit in Nederland;
  • decentralisatie van verantwoordelijkheden;
  • vereenvoudiging van regels.
Gebiedsbescherming
Wat betreft de gebiedsbescherming richt de Wet natuurbescherming zich op de bescherming van Natura 2000-gebieden. Per Natura 2000-gebied zijn (instandhoudings)doelen (voor soorten en vegetatietypen) opgesteld. Iedereen die vermoedt of kan weten dat zijn handelen of nalaten, gelet op de instandhoudingdoelen, nadelige gevolgen voor een Natura 2000-gebied kan hebben, is verplicht deze handelingen achterwege te laten of te beperken. 
 
Naast de bescherming vanuit de Wet natuurbescherming is in het kader van gebiedsbescherming het Natuurnetwerk Nederland (NNN) van belang. Het NNN vormt een samenhangend netwerk van belangrijke natuurgebieden in Nederland en omvatten bestaande natuurgebieden, nieuwe natuurgebieden en ecologische verbindingszones. Het NNN draagt bij aan het bereiken van de hoofddoelstelling van het Nederlandse natuurbeleid, namelijk: 'Natuur en landschap behouden, versterken en ontwikkelen, als bijdrage aan een leefbaar Nederland en een duurzame samenleving'. Hiertoe zijn de volgende uitgangspunten van belang: 
  • vergroten: het areaal natuur uitbreiden en zorgen voor grotere aaneengesloten gebieden;
  • verbinden: natuurgebieden zoveel mogelijk met elkaar verbinden;
  • verbeteren: de omgeving zo beïnvloeden dat in natuurgebieden een zo hoog mogelijke natuurkwaliteit haalbaar is.
Soortenbescherming
De Wet natuurbescherming is gericht op het bereiken of herstellen van een gunstige staat van instandhouding van beschermde soorten. Op basis van de wet zijn activiteiten die schadelijk zijn voor beschermde dier- en plantsoorten verboden. Waar de voormalige Flora- en faunawet echter uitging van drie beschermingsniveaus, verdeelt de Wet natuurbescherming beschermde soorten in twee groepen:
  • strikt beschermde soorten waaronder soorten uit de Vogel- en Habitatrichtlijn;
  • andere soorten, bijvoorbeeld uit de Rode Lijst.          
Ten opzichte van de Flora- en faunawet zijn circa 200 soorten (vooral vaatplanten en vissen) niet langer beschermd en zijn enkele bedreigde soorten (met name bepaalde vlinders en vaatplannen) toegevoegd.  
 
Planspecifiek
Met onderhavig wijzigingsplan wordt de bestaande bebouwing gesloopt en hiervoor in de plaats wordt een hospice gerealiseerd. Om aan te tonen of de bebouwing en planlocatie geschikt leef- en/of verblijfsgebied is voor beschermde soorten is een ecologische quickscan uitgevoerd (juni 2020, Eco-Niche, zie bijlagen bij toelichting bijlage 3).
 
Soortenbescherming
Op de planlocatie worden de volgende beschermde soorten/groepen verwacht of zijn deze niet uit te sluiten: vogels (algemene broedvogelsoorten), grondgebonden zoogdieren (soorten die onder een vijstellingsregeling vallen) en vleermuizen (gebouwbewonend en boombewonend), amfibieën (soorten die onder een vijstellingsregeling vallen).
 
Voor vogels geldt dat het vernietigen van een nest niet is toegestaan. Geadviseerd wordt om de werkzaamheden buiten de broedperiode plaatsvinden. Daarnaast wordt geadviseerd om voorafgaand aan de werkzaamheden de planlocatie te controleren op nesten. Voor vleermuizen is een nader onderzoek nodig naar kleine gebouwbewonende soorten. Tevens geldt voor alle soortengroepen de zorgplicht.
 
Nader onderzoek vleermuizen
Met de quickscan is de aanwezigheid van vleermuizen en negatieve effecten op deze soortgroep op voorhand niet uitgesloten. Derhalve is een nader onderzoek naar vleermuizen uitgevoerd (oktober 2020, Eco-Niche, zie bijlagen bij toelichting bijlage 4).
 
Van mei tot en met september 2020 is voor de voormalige school aan de Hoogmadeseweg 70 het nader onderzoek naar vleermuizen uitgevoerd. Binnen de planlocatie inclusief de boom met openingen in de groenstrook zijn geen vaste rust- en verblijfplaatsen van vleermuizen vastgesteld. De beoogde sloop van de school heeft daarmee geen negatieve effecten op vleermuizen. Voor vleermuizen is dan ook geen sprake van overtreding van verbodsbepalingen uit de Wet natuurbescherming
   
Gebiedsbescherming
De planlocatie ligt binnen de bebouwde kern van Leiderdorp, op ca. 300 meter van het buitengebied. De planlocatie maakt geen onderdeel uit van en grenst niet aan een beschermd natuurgebied. Het dichtstbijzijnde beschermde natuurgebied is een vochtig veenweidegebied in 'Polder Achthoven' en maakt onderdeel uit van het NNN op ca. 800 m afstand van de planlocatie. Het dichtstbijzijnde Natura 2000-gebied is het Vogelrichtlijngebied 'De Wilck' op ca. 5 km van de planlocatie.
 
De NNN kent geen externe werking en de Natura 2000-gebieden liggen buiten de invloedssfeer van de planlocatie. Gezien de aard, inclusief het gelijkblijvend toekomstig gebruik, de geringe omvang en de geruime afstand en ligging van het project, is elk effect op de natuurdoelstellingen die voor de natuurgebieden gelden op voorhand uit te sluiten. Ook van externe werking is geen sprake.   
 
Stikstofdepositie
Het meest nabijgelegen Natura 2000-gebied 'De Wilck' niet stikstofgevoelig. Het dichtstbijzijnde stikstofgevoelige Natura 2000-gebied 'Meijendel & Berkheide' ligt op een afstand van ca. 9 km. Gelet op de aard en omvang van het project en de zeer ruime afstand tot het dichtstbijzijnde Natura 2000-gebied zal er ook geen sprake zijn van significante effecten op de omliggende Natura 2000-gebieden vanwege stikstofdepositie. Een AERIUS-berekening is niet noodzakelijk.
 
Conclusie
Geconcludeerd kan worden dat het aspect ecologie geen belemmeringen veroorzaakt voor de beoogde ontwikkeling van de hospice.
 
5.5 Archeologie
In 1992 is in Valletta (Malta) het Europees Verdrag inzake de bescherming van het archeologisch erfgoed (Verdrag van Malta) ondertekend. Het Verdrag van Malta voorziet in bescherming van het Europees archeologisch erfgoed onder meer door de risico's op aantasting van dit erfgoed te beperken. Per 1 juli 2016 is de Erfgoedwet ingegaan totdat de Omgevingswet in werking treedt. De Erfgoedwet bundelt bestaande wet- en regelgeving voor behoud en beheer van het cultureel erfgoed in Nederland. Onder andere de Monumentenwet is hierin opgegaan. Op basis van de Erfgoedwet zijn mogelijke (toevals)vondsten bij het verrichten van werkzaamheden in de bodem altijd beschermd. Artikel 5.10 lid 1 van de Erfgoedwet stelt namelijk: 'Degene die anders dan bij het verrichten van opgravingen een vondst doet waarvan hij weet dan wel redelijkerwijs moet vermoeden dat het een archeologische vondst betreft, meldt dit zo spoedig mogelijk bij Onze Minister'.
 
Planspecifiek
Ter plaatse van het plangebied geldt de dubbelbestemming 'Waarde - Archeologie - middelhoge trefkans'. Voor het bouwen van bouwwerken met een oppervlakte van meer dan 100 m² en dieper dan 0,30 m dient een archeologisch onderzoek uitgevoerd te worden. Met het beoogde initiatief worden deze normen overschreden. Om die reden is een archeologisch bureau- en inventariserend veldonderzoek uitgevoerd (oktober 2020, IDDS, zie bijlagen bij toelichting bijlage 5).
 
Tijdens het onderzoek is geconstateerd dat het plangebied verstoord is tot een diepte variërend van 1,1 tot 2,1 m -mv (-0,7 tot -1,7 m NAP). Onder die verstoring bevinden zich tot de maximale boordiepte van 5,4 m -mv alleen afzettingen met een lage archeologische verwachting. Op basis van de resultaten van het onderzoek wordt geadviseerd om het plangebied, voor wat betreft het aspect archeologie, vrij te geven voor bodemverstorende werkzaamheden.
 
Geconcludeerd kan worden dat het aspect archeologie geen belemmeringen veroorzaakt voor de beoogde ontwikkeling van de hospice.
 
5.6 Cultuurhistorie
Goede ruimtelijke ordening betekent dat er een integrale afweging plaatsvindt van alle belangen die effect hebben op de kwaliteit van de ruimte. Een van die belangen is de cultuurhistorie. Ruimtelijke plannen zijn een belangrijk instrument om cultuurhistorische waarden in een gebied te beschermen.
 
Per 1 januari 2012 is in het kader van de modernisering van de monumentenzorg (MOMO) in het Besluit ruimtelijke ordening van het rijk opgenomen dat gemeenten bij het maken van ruimtelijke plannen rekening moeten houden met cultuurhistorische waarden.
 
Planspecifiek
Binnen het plangebied en in de directe omgeving zijn geen gemeentelijke en/of rijksmonumenten aanwezig. Tevens maakt het plangebied geen onderdeel uit van een beschermd stads- of dorpsgezicht. Ook andere cultuurhistorisch waardevolle elementen zijn niet aanwezig.
 
Geconcludeerd kan worden dat het aspect cultuurhistorie geen belemmeringen veroorzaakt voor de beoogde ontwikkeling.
 
5.7 Duurzaamheid
Het belangrijkste doel uit het Klimaatakkoord is de CO2-uitstoot in 2030 met 49% verminderd ten opzicht van 1990. In 2050 is de uitstoot van broeikasgassen zelfs met 95% afgenomen. Om de klimaatdoelen voor 2030 te behalen moet het tempo van verduurzaming omhoog.
 
Nederland in 2050 vrij van aardgas
Op 7 december 2016 is de energieagenda gepubliceerd door minister Kamp. De agenda schetst het beleid na 2023 dat moet leiden tot een vrijwel CO2-neutrale economie in Nederland in 2050. De agenda beschrijft de overgang naar een gasloze maatschappij. Verwarming van huizen en kantoren zal worden overgenomen door duurzame energiebronnen en koken zal in de toekomst uitsluitend nog elektrisch gebeuren.
De Wet Voortgang Energietransitie (Wet VET) schrijft voor dat nieuwbouw per 1 juli 2018 gasloos uitgevoerd dient te worden.
 
Energie (BENG)
De rijksoverheid stimuleert duurzaam bouwen vooral op het aspect energie. Sinds 1995 worden in het Bouwbesluit eisen gesteld ten aanzien van de energiezuinigheid van een gebouw. Tot 31 december 2020 wordt de energie-efficiëntie uitgedrukt in de Energie Prestatie Coëfficiënt (EPC). Hierbij werd gestreefd naar EPC = 0,0, waarbij een gebouw energieneutraal is. Vanaf 1 januari 2021 moeten alle gebouwen voldoen aan de eisen van Bijna Energieneutrale Gebouwen (BENG). Die eisen vervangen de EPC en zijn dus ook van toepassing op het voorliggende initiatief.
  
MilieuPrestatie Gebouwen (MPG)
De MilieuPrestatie Gebouwen (MPG) is een belangrijke maatstaf voor de duurzaamheid van een gebouw en is bij elke aanvraag voor een omgevingsvergunning verplicht. De MPG geeft aan wat de milieubelasting is van de materialen die in een gebouw worden toegepast. Het gaat hierbij om nieuwbouwwoningen en nieuwe kantoorgebouwen die groter zijn dan 100 m². Hoe lager de MPG, hoe duurzamer het materiaalgebruik.
 
De impact van de gebruikte materialen wordt in kaart gebracht aan de hand van productiewijze van de gebruikte bouwmaterialen, het transport, de levensduur van de materialen en de manier van afdanken. Vervolgens worden alle materialen bij elkaar opgeteld. Het resultaat van een dergelijke analyse wordt uitgedrukt in de zogenaamde ‘schaduwkosten’ van het materiaal. Hoe lager de schaduwkosten, hoe duurzamer het gekozen materiaaltype. Per 1 januari 2018 geldt een maximale totale schaduwprijs van 1,0€ / m² bvo.
  
Provinciaal energiebeleid
Het provinciaal beleid is vastgelegd in de Provinciale Structuurvisie. Bijbehorende kaders zijn vastgelegd in de Omgevingsvisie Zuid-Holland. Het plangebied is gelegen binnen stedelijk gebied. Ten aanzien hiervan geldt dat bij de toelichting op een ruimtelijk plan een beschrijving bevat op welke wijze rekening is gehouden met energiebesparing en het toepassen van duurzame energiebronnen.
 
GPR Gebouw
Een meetinstrument voor duurzame ontwikkeling en het benutten van het besparingspotentieel is GPR Gebouw. GPR Gebouw is een manier om duurzaam bouwen te concretiseren en doet dit door een rapportcijfer te geven op vijf thema’s: Energie, Milieu, Gezondheid, Gebruikskwaliteit en Toekomstwaarde. Hierbij geldt, hoe hoger het cijfer, hoe duurzamer het gebouw. Door de GPR Gebouw in te vullen wordt meer nagedacht over duurzaamheid tijdens het ontwerpen en (ver)bouwen van gebouwen. GPR Gebouw kan ook gebruikt worden om bestaande woningen en gebouwen te verduurzamen. Na invoering van gegevens in GPR Gebouw betreffende de woningen worden prestaties zichtbaar op de thema’s Energie, Milieu, Gezondheid, Gebruikskwaliteit en Toekomstwaarde.
 
Planspecifiek
Het nieuwe gebouw zal aan de BENG-normen voldoen. Voor het verwarmen van het gebouw wordt gebruik gemaakt van een warmtepomp met bodemlussen als bron. Daarnaast wordt het gebouw voorzien van een goede isolatie en duurzame materialen. Tevens bestaat de mogelijkheid voor het gebruik van PV-panelen.
 
5.8 Verkeer en parkeren
Onderdeel van een goede ruimtelijke ordening is het effect van een beoogd nieuw project op de verkeersstructuur en het parkeren in en rondom het plangebied.
 
5.8.1 Verkeer
Voor het maken van een inschatting van de hoeveelheid autoverkeer dat wordt gegenereerd bij ruimtelijke ontwikkelingen, zijn kencijfers verkeersgeneratie ontwikkeld. Onder verkeersgeneratie wordt hierbij verstaan de totale hoeveelheid gemotoriseerd verkeer (exclusief openbaar vervoer) die gedurende een gekozen tijdsperiode naar de beoogde ontwikkeling toe rijdt en hiervan wegrijdt.
 
Het nationale kennisplatform voor infrastructuur, verkeer, vervoer en openbare ruimte (CROW) geeft in publicatie 381 'Toekomstbestendig parkeren' deze kencijfers voor verkeersgeneratie. In de richtlijnen wordt onderscheid gemaakt op basis van de functie van de ontwikkeling (wonen, bedrijf, etc.) en op basis van de locatiekenmerken. Zodoende kan bij ruimtelijke ontwikkelingen voor vrijwel elke locatie een goed beeld worden verkregen wat de totale verkeersaantrekkende werking bedraagt.
 
Planspecifiek
Voor een hospice zijn er in de CROW-publicatie 381 geen parkeernormen beschikbaar. De verkeersbewegingen die veroorzaakt worden zullen afkomstig zijn van het personeel, bezoekers en leveranciers. De initiatiefnemer heeft een schatting gemaakt van de te verwachten verkeersgeneratie. In de navolgende tabel staat de te verwachten verkeersgeneratie weergegeven.
 
Omschrijving
Aantal per etmaal
Percentage auto
Aantal verkeersbewegingen
Verpleegkundigen
5
50%
2,5
Coördinator en manager
1,5
0%
0
Vrijwilligers
5
50%
2,5
Bezoekers
12
100%
12
Leveranciers
1
100%
1
Totaal
-
-
18
 
Het totale aantal bezoekers van 12 per etmaal is gebaseerd op vier bezoekers per gast per etmaal, waarvan gemiddeld 1,5 personen gezamenlijk met de auto komt. Daarnaast is uitgegaan van een gemiddeld bezettingspercentage van 75% en een capaciteit van zes gasten (0,75*6*4/1,5= 12).  
  
Gelet op de schaal van het plan kunnen de verkeersbewegingen opgevangen worden met de huidige verkeersstructuur. Geconcludeerd kan worden dat het aspect verkeer geen belemmeringen veroorzaakt voor het voorliggende initiatief.
 
5.8.2 Parkeren
Het benodigde of gewenste aantal parkeerplaatsen bij ruimtelijke ontwikkelingen kan worden bepaald op basis van parkeerkencijfers of op basis van parkeernormen. Parkeerkencijfers zijn op de praktijk gebaseerde cijfers van de verwachte parkeerbehoefte. Parkeernormen staan voor het aantal vereiste parkeerplaatsen per type bestemming. Op basis van deze parkeernormen wordt parkeerbeleid veelal vormgegeven.
 
De gemeente Leiderdorp heeft in het Parkeerbeleidsplan Leiderdorp (vastgesteld op 7 februari 2012) en het Addendum Parkeerbeleid Leiderdorp (vastgesteld op 3 februari 2016) vastgelegd welke parkeernormen er gelden.
   
Planspecifiek
Volgens het parkeerbeleid van de gemeente Leiderdorp zijn er geen parkeernormen voor een hospice. Om het benodigde aantal parkeerplaatsen te bepalen wordt is er gekozen voor de categorie 'verpleeghuis/verzorgingstehuis/zorgcentrum'. Hiervoor geldt een maximale parkeernorm van 0,7 parkeerplaatsen per wooneenheid. Uitgaande van deze categorie moeten er voor de 6 gastenverblijven afgerond 5 parkeerplaatsen gerealiseerd moeten worden.
 
Met het beoogde plan worden 16 parkeerplaatsen gerealiseerd. Er kan dan ook geconcludeerd worden dat het plan voorziet in het benodigde aantal parkeerplaatsen.
 
6 Juridische planbeschrijving
6.1 Algemeen
Voor het wijzigingsplan is gebruik gemaakt van de in de Wet ruimtelijke ordening opgenomen standaardvorm van de Standaard Vergelijkbare Bestemmingplannen 2012 (SVBP 2012).
 
Dit wijzigingsplan bestaat uit een verbeelding, planregels en een toelichting. De verbeelding en de planregels vormen samen het juridisch bindende gedeelte van het wijzigingsplan. Beide planonderdelen dienen in onderlinge samenhang te worden bezien en toegepast. Op de verbeelding zijn de bestemmingen aangewezen. Aan deze bestemmingen zijn bouwregels en regels betreffende het gebruik gekoppeld.
 
6.2 Toelichting
De toelichting heeft geen rechtskracht, maar vormt niettemin een belangrijk onderdeel van het plan. De toelichting van dit wijzigingsplan geeft een weergave van de beweegredenen, de onderzoeksresultaten en de (beleids-)uitgangspunten die aan het wijzigingsplan ten grondslag liggen. Ook is de toelichting van wezenlijk belang voor een juiste interpretatie en toepassing van het wijzigingsplan. Tot slot maakt een eventuele bijlage onlosmakelijk onderdeel uit van het wijzigingsplan.
 
6.3 Verbeelding
Op de verbeelding worden de bestemmingen weergegeven met daarbij andere bepalingen als gebiedsaanduidingen, bouwaanduidingen, bouwvlakken, etc. Voor de analoge verbeelding is gebruik gemaakt van een digitale ondergrond (Grootschalige Basiskaart en/of kadastrale kaart).
 
6.4 Planregels
De planregels zijn onderverdeeld in vier hoofdstukken. Hoofdstuk 1 bevat de inleidende regels voor het hele plangebied. Hoofdstuk 2 geeft de bestemmingsregels. Hoofdstuk 3 geeft vervolgens de algemene regels waaronder (mogelijke) flexibiliteitsbepalingen in de vorm van wijzigings- en afwijkingsbevoegdheden. In dit derde hoofdstuk kunnen belangrijke algemene bepalingen zijn opgenomen die van invloed zijn op het bepaalde in hoofdstuk II. Ten slotte regelt hoofdstuk 4 de overgangs- en slotbepalingen. 
 
Voor de planregels is de gestandaardiseerde opbouw uit de SVBP 2012 gebruikt. In de planregels is een standaard hoofdstukindeling aangehouden die begint met 'Inleidende regels' (begrippen en wijze van meten), vervolgens met de 'Bestemmingsregels', de 'Algemene regels' (de regels die voor alle bestemmingen gelden) en de 'Overgangs- en slotregels'. In het tweede hoofdstuk, de Bestemmingsregels, staan de verschillende bestemming op alfabetische volgorde. Ook dit hoofdstuk kent een standaardopbouw:
  • Bestemmingsomschrijving (in elk bestemmingsplan);
  • Bouwregels (bestemmingsplanafhankelijk);
  • Nadere eisen (bestemmingsplanafhankelijk);
  • Afwijken van de bouwregels (bestemmingsplanafhankelijk);
  • Specifieke gebruiksregels (bestemmingsplanafhankelijk);
  • Afwijken van de gebruiksregels (bestemmingsplanafhankelijk);
  • Omgevingsvergunning voor het uitvoeren van een werk, geen bouwwerk zijnde, of van werkzaamheden (bestemmingsplanafhankelijk).
6.5 Wijze van bestemmen
Voorliggend wijzigingsplan bevat de volgende (dubbel)bestemmingen:
 
Maatschappelijk
De gronden ter plaatse van de bestemming 'Maatschappelijk' zijn bestemd voor maatschappelijke voorzieningen. Tevens zijn binnen deze bestemming water, voorzieningen voor de waterhuishouding, groenvoorzieningen, straatmeubilair en speeltoestellen toegestaan. Voor de hospice is de aanduiding 'specifieke vorm van maatschappelijk - hospice' opgenomen.
 
Gebouwen mogen uitsluitend binnen het bouwvlak worden gebouwd. De maximale bouwhoogte staat op de verbeelding weergegeven en bedraagt 9 m. Voor erf- en terreinafscheidingen vóór de voorgevel van het hoofdgebouw geldt een bouwhoogte van maximaal 1 m en voor achter de voorgevel geldt een maximale bouwhoogte van 2 m. Daarnaast is een voorwaardelijke verplichting voor het plaatsen van een geluidscherm. Het geluidscherm heeft een maximale bouwhoogte van 2 m aan de zuidwestzijde en noordoostzijde en 3 m aan de zuidoostzijde.
7 Economische uitvoerbaarheid
Bij de voorbereiding van een ruimtelijk plan dient, op grond van artikel 3.1.6 lid 1, sub f van het Bro, onderzoek plaats te vinden naar de (economische) uitvoerbaarheid van het plan. In principe dient bij vaststelling van een ruimtelijk besluit tevens een exploitatieplan vastgesteld te worden om verhaal van plankosten zeker te stellen. Op basis van ‘afdeling 6.4 grondexploitatie', artikel 6.12, lid 2 van de Wro kan de gemeenteraad bij het besluit tot vaststelling van het bestemmingsplan echter besluiten geen exploitatieplan vast te stellen indien:
  • het verhaal van kosten van de grondexploitatie over de in het plan of besluit begrepen gronden anderszins verzekerd is;
  • het bepalen van een tijdvak of fasering als bedoeld in artikel 6.13, eerste lid, onder c, 4°, onderscheidenlijk 5°, niet noodzakelijk is;
  • het stellen van eisen, regels, of een uitwerking van regels als bedoeld in artikel 6.13, tweede lid, onderscheidenlijk b, c of d, niet noodzakelijk is.
Planspecifiek
Het plan wordt op particulier initiatief gerealiseerd. Het kostenverhaal is verzekerd via de opbrengsten uit de grondverkoop en de leges.
8 Maatschappelijke uitvoerbaarheid
8.1 Algemeen
Bij de voorbereiding van een (voor)ontwerpwijzigingsplan dient op grond van artikel 3.1.6 lid 1 Wro sub c overleg te worden gevoerd als bedoeld in artikel 3.1.1 Bro. Op basis van het eerste lid van dit artikel wordt overleg gevoerd met waterschappen en met die diensten van provincie en Rijk die betrokken zijn bij de zorg voor de ruimtelijke ordening of belast zijn met de behartiging van belangen welke in het plan in het geding zijn.
 
Het ontwerpwijzigingsplan zal conform afdeling 3.4 Awb gedurende 6 weken ter inzage gelegd worden. Hierbij is er de mogelijkheid van zienswijzen voor een ieder, ook voor overlegpartners. Na vaststelling door het college van burgemeester en wethouders zal het vaststellingsbesluit bekend gemaakt worden. Het wijzigingsplan ligt na bekendmaking dan 6 weken ter inzage. Gedurende deze termijn is er de mogelijkheid van beroep bij de Afdeling bestuursrechtspraak Raad van State.
 
8.2 Verslag artikel 3.1.1 Bro overleg
Bij de voorbereiding van een (voor)ontwerpwijzigingsplan dient op grond van artikel 3.1.6 lid 1 Wro sub c overleg te worden gevoerd als bedoeld in artikel 3.1.1 Bro. Op basis van het eerste lid van dit artikel is hieraan als volgt gevolg gegeven:
 
Provincie Zuid Holland
Aan de provincie is een e-formulier toegezonden, met daarin de nodige informatie over het plan. Op basis van deze verstrekte informatie is geconcludeerd dat uit de gegevens blijkt dat het plan niet strijdig is met provinciale belangen, het plan hoeft niet te worden opgestuurd naar de provincie Zuid Holland (25 mei 2021, Provincie Zuid-Holland, zie bijlagen bij toelichting bijlage 6).
 
Veiligheidsregio Hollands Midden (VRHM)
De veiligheidsregio heeft op 3 december 2020 advies uitgebracht. Daarin wordt gemeld dat “vooroverleg niet verder benodigd is en dat er direct een bestemmingsplanadvies gemaakt kon worden”.
 
Niet alle geadviseerde maatregelen kunnen worden geborgd via het bestemmingsplan (wijzigingsbevoegdheid), maar zullen via de nog benodigde omgevingsvergunning nader worden geborgd (3 december 2020, VRHM, zie bijlagen bij toelichting bijlage 7).
 
Hoogheemraadschap van Rijnland
Overleg met Hoogheemraadschap is niet nodig. Er vindt geen wijziging van de bouwmogelijkheden plaats. Binnen de maatschappelijke bestemming wordt alleen een geluidgevoelige bestemming mogelijk gemaakt.
  
8.3 Verslag zienswijzen
In deze paragraaf of in een separate bijlage worden te zijner tijd de eventuele zienswijzen op het ontwerp wijzigingsplan en de gemeentelijke reactie hierop opgenomen.